174 Elliot Wd
Offered at: $699,000
MLS®: E4466159
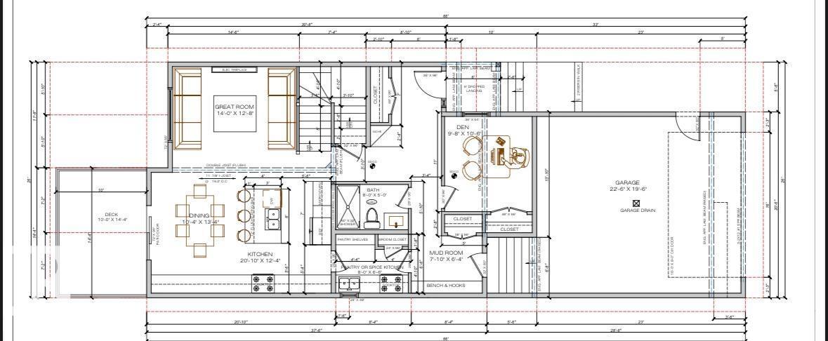
Introducing 174 Elliot Wynd, a stunning new construction 4-bed, 3-bath home with premium features and 709?m² pie-shaped pond-backing lot. This home boasts a main floor den convertible to a 5th bedroom, open-to-above living room, chef’s butler’s pantry, mudroom, and walk-out basement—perfect for entertaining or growing families. The main floor features seamless living spaces with abundant natural light, while the upper level offers spacious bedrooms, including a luxurious primary retreat. With high-end finishes throughout, this home blends elegance and functionality in a sought-after location. Enjoy serene pond views from your backyard and easy access to nearby amenities. Positioned for families seeking space, style, and lifestyle, this is the premium choice on Elliot Wynd. Don’t miss this opportunity! (id:6769)
Quick Stats
Key Home Data
3
BATH(S)
4
BED(S)
2212
SQFT
YES
SHOWING AVAILABLE
Property Type:
Single Family Home Ownership:
Freehold
Payment Calculator
Calculate your monthly mortgage payment.
Mortgage Amount
$
Amortization
years
Payment Freq.
Interest Rate
%
Calculating...
All About the Details
See specific details below.
Neighbourhood Statistics
Get to know your neighbourhood.
