Contact Debbie Kozari & Tammy Kozari About This Property

Debbie Kozari & Tammy Kozari

Mobile: 250-493-2244

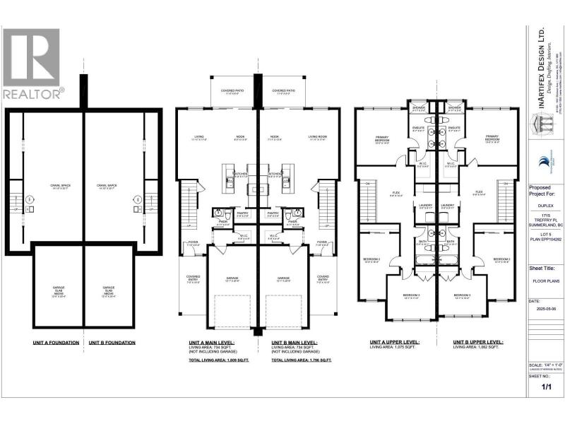
Property Location

  • Country
    : Canada
  • Province
    : British Columbia
  • City
    : Summerland
  • Address
    : 1715 Treffry Place
  • Postal Code
    : V0H1Z9
  • Presented by:
    : Oakwyn Realty Okanagan

Disclaimer

The property information on this website is derived from the Canadian Real Estate Association''s Data Distribution Facility (DDF®). DDF® references real estate listings held by various brokerage firms and franchisees. The accuracy of information is not guaranteed and should be independently verified. The trademarks REALTOR®, REALTORS® and the REALTOR® logo are controlled by The Canadian Real Estate Association (CREA) and identify real estate professionals who are members of CREA. The trademarks MLS®, Multiple Listing Service® and the associated logos are owned by CREA and identify the quality of services provided by real estate professionals who are members of CREA.

Listing data last updated date: 2026-01-16 02:45:50


MLS - Realtor Logo