#1 222 Temple Street
Offered at: $579,000
MLS®: 10372764
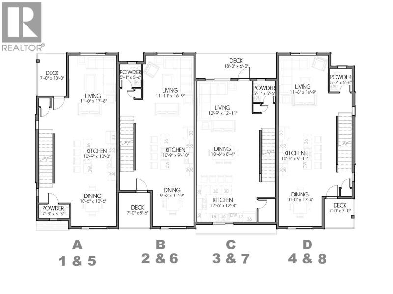
Welcome to #1 at MaraVista in Sicamous. This rare corner unit offers exceptional privacy with only 1 shared wall, making it one of the most desirable locations in the complex. Enjoy 1,582 sq.ft. of modern living plus a large 663 sq.ft. garage w/ 8’ overhead door & 39’ deep x 19.5’ wide —ideal for vehicles, lake toys, bikes, snowmobiles & storage. The open-concept main floor is bright & functional, featuring a stylish kitchen with eating bar, electric fireplace, dining area, powder room, & access to a 7’ x 8.5’ deck for relaxing & entertaining. Upstairs offers 2 spacious bedrooms + den, with both bedrooms featuring private ensuites, plus a full walk-in closet in the primary & convenient upper-floor laundry. Finished with quartz countertops throughout, white wood grained cabinetry, matte black hardware, neutral vinyl plank flooring, & enhanced soundproofing. The exterior includes durable HardiePlank siding, energy-efficient windows, & a high-efficiency mini-split A/C system for year-round comfort. A fully fenced yard adds bonus outdoor space for pets and children. Located in a prime walkable Sicamous location close to downtown, parks, the beach, schools, & everyday amenities. Prewired for fibre optic internet . Only 5% down + $5,000 appliance credit available for first 4 units sold. Low strata fee $356.11/month. OAC -low as 3.64% 3 year insured loan and cash back upto $4800. Pet restrictions apply. Second of the four season destination only 22 min to Salmon Arm. (id:6769)
Quick Stats
Key Home Data
3
BATH(S)
3
BED(S)
1551
SQFT
YES
SHOWING AVAILABLE
Property Type:
Single Family Home Ownership:
Strata
Payment Calculator
Calculate your monthly mortgage payment.
Mortgage Amount
$
Amortization
years
Payment Freq.
Interest Rate
%
Calculating...
All About the Details
See specific details below.
Neighbourhood Statistics
Get to know your neighbourhood.
