4005 Nash Drive
Offered at: $699,700
MLS®: R3074830
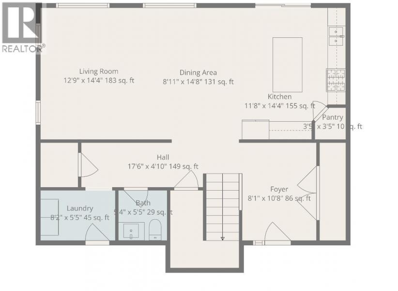
Welcome to your dream home! A stunning new two-storey by Swift River Construction sits on the newest street on the Bench and truly delivers. Step inside to a bright, open-concept layout designed for easy living and entertaining. The modern kitchen shines with LG stainless steel appliances, quartz countertops, and a walk-in pantry. You'll love the three spacious bedrooms, including a huge primary with a spa-inspired ensuite, walk-in closet, and private deck. Outside, enjoy a covered concrete patio and large yard perfect for BBQs, kids, and pets. With a double garage, massive driveway, heat pump, and 2-5-10 warranty, this home checks every box. See it and fall in love. (id:6769)
Quick Stats
Key Home Data
3
BATH(S)
3
BED(S)
1930
SQFT
YES
SHOWING AVAILABLE
Property Type:
Single Family Home Ownership:
Freehold
Payment Calculator
Calculate your monthly mortgage payment.
Mortgage Amount
$
Amortization
years
Payment Freq.
Interest Rate
%
Calculating...
All About the Details
See specific details below.
Neighbourhood Statistics
Get to know your neighbourhood.
