2716 Edgewater Crescent
Offered at: $679,900
MLS®: R3074474
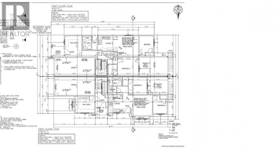
Located in The Banks subdivision, this brand new half duplex showcases a bright, open-concept layout with a stylish West Coast contemporary design. The main living area is thoughtfully designed for both everyday living and entertaining, featuring abundant natural light and modern finishes throughout. The home includes a 1 bedroom suite, offering flexibility for guests or additional income. Ideally situated within walking distance to the river, schools, and nearby recreation. Finally, the backyard is fully fenced and features a lovely back deck. Truly a rare find! (id:6769)
Quick Stats
Key Home Data
0
BATH(S)
1
BED(S)
2161
SQFT
YES
SHOWING AVAILABLE
Property Type:
Single Family Home Ownership:
Freehold
Payment Calculator
Calculate your monthly mortgage payment.
Mortgage Amount
$
Amortization
years
Payment Freq.
Interest Rate
%
Calculating...
All About the Details
See specific details below.
Neighbourhood Statistics
Get to know your neighbourhood.
