1505 32 Avenue
Offered at: $849,000
MLS®: 10370652
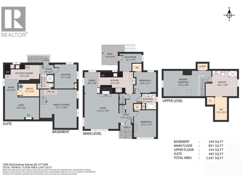
East Hill Charmer! 3 bed, 2 baths PLUS a 1 bed 1 bath self-contained suite. This lovely home is situated on 32nd Ave just across the street from the recently updated and well-maintained Lake View Park w/baseball fields, splash park, playground and pool. The neighborhood has an abundance of sidewalks and bike lanes making it east to get around at your leisure. The home has been tastefully updated throughout, the 1 bed suite it currently tenanted at $1650 per month with a lease in place until spring of 2026. The backyard of this home is set up to entertain your many guests, small, detached workshop, side and street parking. (id:6769)
Quick Stats
Key Home Data
3
BATH(S)
4
BED(S)
2047
SQFT
YES
SHOWING AVAILABLE
Property Type:
Single Family Home Ownership:
Freehold
Payment Calculator
Calculate your monthly mortgage payment.
Mortgage Amount
$
Amortization
years
Payment Freq.
Interest Rate
%
Calculating...
All About the Details
See specific details below.
Neighbourhood Statistics
Get to know your neighbourhood.
