7 Burns Road
Offered at: $35
MLS®: 16981
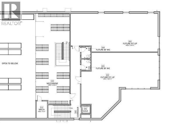
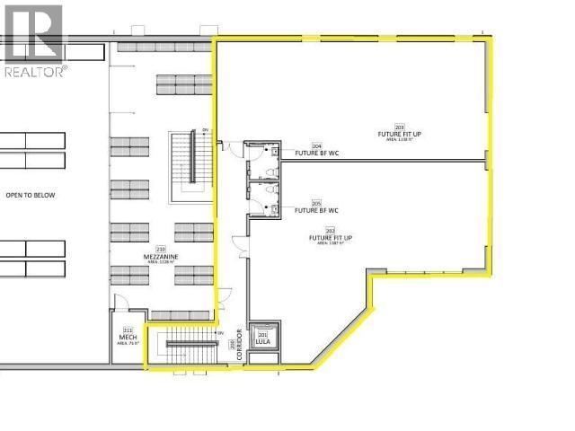
Set to be completed in the summer of 2026, this brand-new second-floor commercial space offers approximately 3229 square feet of flexible floor area, complete with lift access. Featuring two bathrooms and large south-facing windows, this space is perfect for a variety of business uses. Located in a high-traffic area with excellent access to major roads and public transportation, it also provides ample parking for both tenants and clients. Priced at $35/sqft triple-net, with heat, garbage, and snow removal included, this is an opportunity you don't want to miss. Secure your spot in this highly anticipated development today--contact us for more details! (id:6769)
Quick Stats
Key Home Data
0
BATH(S)
BED(S)
3229
SQFT
YES
SHOWING AVAILABLE
Property Type:
Office
Payment Calculator
Calculate your monthly mortgage payment.
Mortgage Amount
$
Amortization
years
Payment Freq.
Interest Rate
%
Calculating...
All About the Details
See specific details below.
Neighbourhood Statistics
Get to know your neighbourhood.
